Dom 54 m² mieszkalny, modułowy, całoroczny SZTUM V8_A2 - nowoczesność w zasięgu ręki
Twój nowy dom w 3–4 tygodnie
Marzysz o domu, który łączy nowoczesny design, komfort całorocznego użytkowania i szybki czas realizacji? SZTUM V8_A2 to rozwiązanie dla Ciebie! Dzięki swojej modułowej konstrukcji, ten 54 m² dom składa się błyskawicznie – możesz w nim zamieszkać po upływie zaledwie 3–4 tygodni.
Dlaczego warto wybrać SZTUM V8_A2?
- Szybki czas realizacji
Zapomnij o wielomiesięcznych projektach budowlanych. Ponieważ dom jest wykonany z modułowych elementów, czas montażu jest niezwykle krótki. Ten model z pełnym wykończeniem wnętrz jest montowany przez naszych profesjonalnych instalatorów w ciągu 3-4 tygodni.
- Komfort przez cały rok
Zastosowane w domie opcje izolacji termicznej, spełniające normy WT2021, zapewniają przyjemne ciepło zimą i optymalny chłód latem.
- Indywidualne podejście do aranżacji
Okna PVC czy drewniane? Przestrzeń otwarta czy z podziałem na strefy? U nas to Ty decydujesz, jak ma wyglądać Twoje wnętrze.
- Nowoczesny design
Elegancka bryła z dużymi przeszkleniami wprowadza naturalne światło do wnętrza, podkreślając połączenie funkcjonalności z estetyką.
- Trwałe i estetyczne materiały
Wykończony gontem bitumicznym, dom nie tylko zachwyca wyglądem, ale również gwarantuje wytrzymałość na lata.
- Wybierz dodatkową opcję
Tutaj możesz wybrać opcje zgodnie ze swoimi potrzebami – kolor podłóg, okien, wykończenie ścian wewnętrznych i sufitów oraz wiele innych.Dzięki temu Twój dom stanie się jeszcze bardziej dopasowany do Twoich oczekiwań, podkreślając jego unikalny charakter i styl.
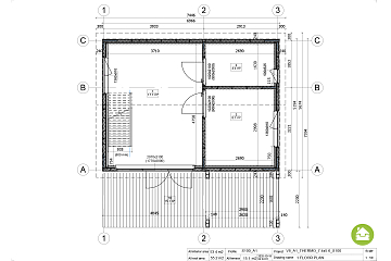
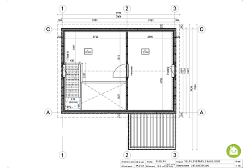
Funkcjonalna przestrzeń, która spełni Twoje potrzeby
SZTUM V8_A2 został zaprojektowany tak, by każdy metr kwadratowy pracował na Twoją wygodę. Na parterze znajdziesz dwie sypialnie, salon z kuchnią i łazienkę, a antresola na piętrze oferuje dodatkowe miejsce do relaksu lub pracy. Z opcjonalnym tarasem możesz cieszyć się chwilą na świeżym powietrzu o każdej porze roku.
Prosty proces realizacji
- Wybierz swój idealny projekt
Spersonalizuj układ i wykończenia tak, by odzwierciedlały Twoje potrzeby i styl życia.
- Budowa w zaledwie kilka tygodni
Profesjonalny montaż domu pozwala Ci uniknąć stresu związanego z długim procesem budowy.
- Wprowadź się i ciesz się swoim nowym domem
Zamieszkaj w przestrzeni, która łączy elegancję i funkcjonalność z niezrównanym komfortem.
Skontaktuj się z nami!
Masz pytania? Nasz zespół chętnie na nie odpowie i pomoże Ci zrobić pierwszy krok w kierunku własnego modułowego domu.
🎯 Twój wymarzony dom jest na wyciągnięcie ręki!
Kliknij poniżej, by rozpocząć proces zamówienia już teraz.
Więcej modeli znajdziesz w kategorii Domki letniskowe modułowe - panelowe.
