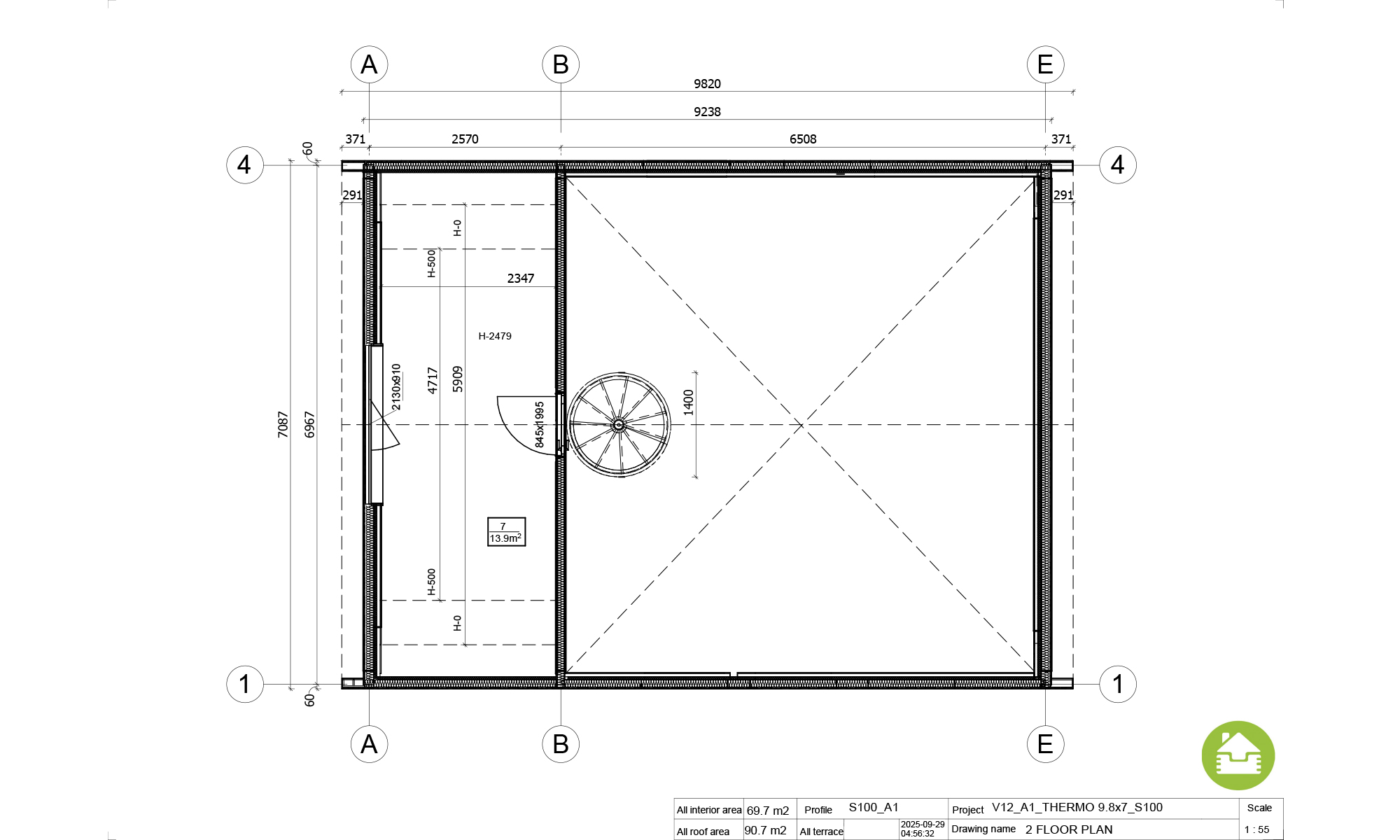
Model RUDNA V12_A1 to kompaktowy, parterowy dom całoroczny modułowy z antresolą, o powierzchni użytkowej 70 m². Idealnie sprawdzi się jako funkcjonalny dom letniskowy, ale także jako tańsza alternatywa dla mieszkania w bloku lub komfortowy dom do zamieszkania przez cały rok.
Konstrukcja domu oparta jest na nowoczesnych rozwiązaniach z prefabrykowanych modułów, co umożliwia szybki montaż – nawet w 4–5 tygodni wraz z pełnym wykończeniem wnętrz.
Dużą zaletą jest elastyczność projektu – dom może być modyfikowany zgodnie z indywidualnymi potrzebami klienta. Oferujemy projekty indywidualne, które pozwalają zmienić układ pomieszczeń, metraż oraz dobrać różne warianty wykończenia wnętrz i elewacji.
W standardzie to ciepła i energooszczędna konstrukcja, a wariant Premium Thermo spełnia aktualne normy domów szkieletowych całorocznych WT2021. Przemyślany układ z antresolą zapewnia wygodną i funkcjonalną przestrzeń dla całej rodziny.
Zastosowane materiały gwarantują wysoką jakość domów modułowych, a atrakcyjna stylistyka doskonale wpasowuje się zarówno w działki miejskie, jak i wiejskie.
Zapewniamy profesjonalną konsultację, doradztwo na każdym etapie i bezkonkurencyjną cenę bezpośrednio od producenta. Więcej modeli znajdziesz w kategorii Domki letniskowe modułowe - panelowe.
 
                   
                   
                   
                   
                   
                   
                   
                   
                   
                   
                   
                   
                   
                   
                   
                   
      -cr-360x240.jpg) 
                                    -cr-360x240.jpg) 
                                    -cr-360x240.jpg) 
                                    -cr-360x240.jpg) 
                                    -cr-360x240.jpg) 
                                    -cr-360x240.jpg) 
                                    -cr-360x240.jpg) 
                                    -cr-360x240.jpg) 
                                    -cr-360x240.jpg) 
                                    -cr-360x240.jpg) 
                                    -cr-360x240.jpg) 
                                    -cr-360x240.jpg) 
                                    -cr-360x240.jpg) 
                                     
                                     
                                     
                                    -cr-360x240.jpg) 
                                    -cr-360x240.jpg) 
                                    -cr-360x240.jpg) 
                                    -cr-360x240.jpg) 
                                    -cr-360x240.jpg) 
                                    -cr-360x240.jpg) 
                                    -cr-360x240.jpg) 
                                    -cr-360x240.jpg) 
                                    -cr-360x240.jpg) 
                                    -cr-360x240.jpg) 
                                    -cr-360x240.jpg) 
                                    -cr-360x240.jpg) 
                                     
                                     
                                     
                                     
                                     
                                     
                                     
                                     
                                     
                                     
                                     
                                     
                                     
                                     
                                     
                                     
                                     
                                    